Description
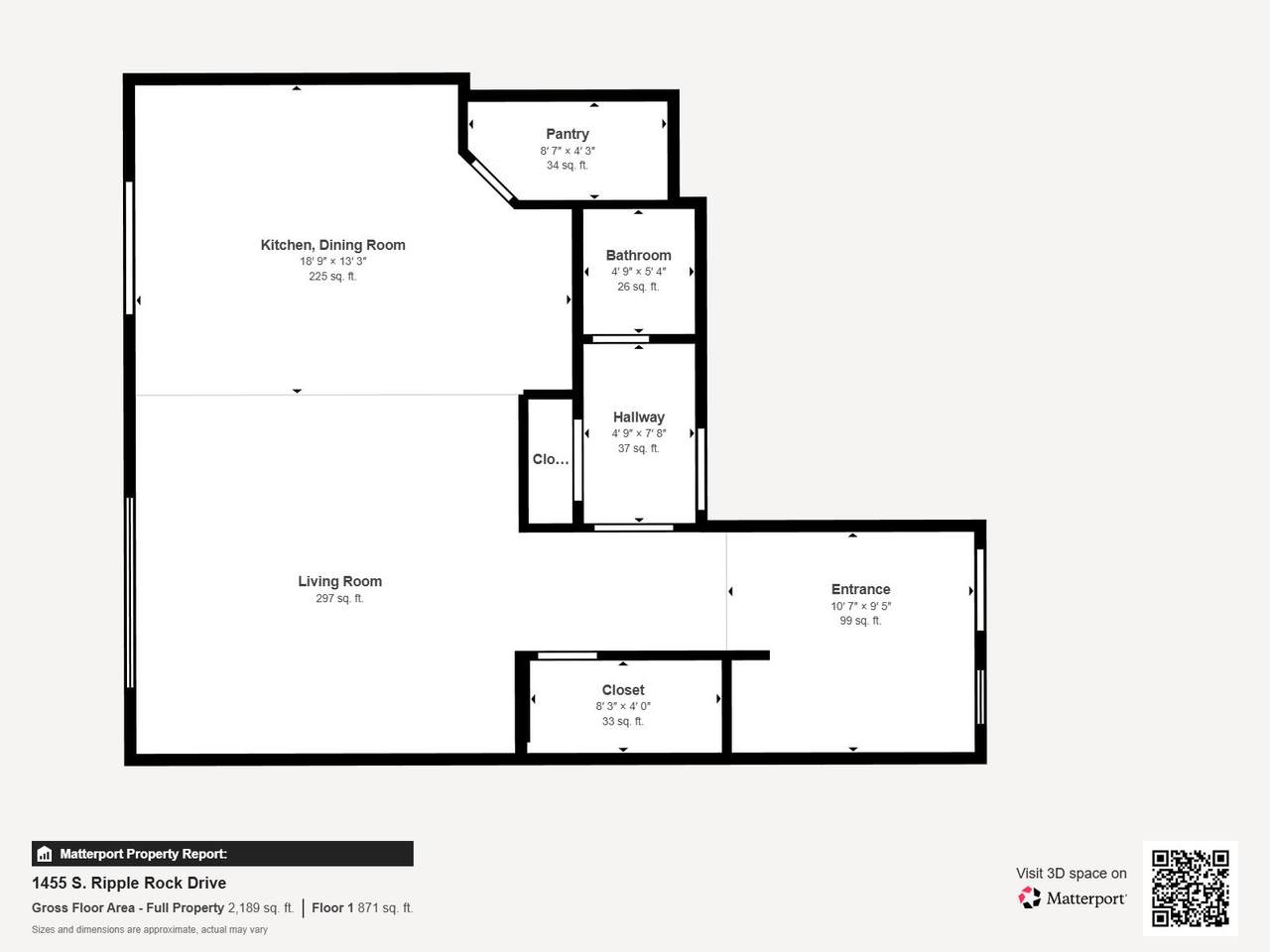
Discover a thoughtfully designed floor plan that LIVES LARGE & feels intimate at the same time. Why wait for new when you can have it all now? You'll appreciate the convenient finishes of the INCLUDED REFRIGERATOR, WINDOW COVERINGS, & a FINISHED BACKYARD, STEEL GATES, & an EV CHARGER in the garage. Light & bright, with ACCENT COLORS & BUILT-INS in all the right places. Open Floor plan with downstairs half bath & an UPGRADED KITCHEN featuring a gas range, large island & OVERSIZED PANTRY. Enjoy LARGE under stairs storage off the entry hall. Separate living spaces keep the common areas away from the bedrooms for maximum PRIVACY. Large LAUNDRY ROOM UPSTAIRS, conveniently located with all FOUR bedrooms. WALK-IN CLOSETS in every bedroom for ABUNDANT STORAGE. Perks include OPEN SPACE BEHIND, mountain views, CHEAP DIXIE POWER, & RENTABLE. Enjoy an UPGRADED BACKYARD that is FULLY FENCED WITH GATES & has easy-care TURF & an EXTENDED PATIO. BUT THAT'S NOT ALL!! The Long Valley community AMENITIES includes 2 pools, Hot Tub, Splash Pad, 12 Pickleball Courts, 18 Hole Putting Course, Driving Nets, Basketball Court, Cornhole, Clubhouse Banquet Rooms, Green Space/Picnic areas, Walking Trails, Dog Park, & On-Site RV Storage. As well as a green/play place just steps from the home! All of this for the LOW HOA of just $50/month! With EASY ACCESS TO HWY 7 that will get you where you need to go quickly, plus NEARBY WALKABLE ACCESS TO AMENITIES, come enjoy Long Valley, where THIS ISN'T JUST A HOME, IT'S A LIFESTYLE!
-
4BEDS
-
0.09ACRES
-
2BATHS
-
11/2 BATHS
-
2,131SQFT
-
$223$/SQFT
School Information
Description
Discover a thoughtfully designed floor plan that LIVES LARGE & feels intimate at the same time. Why wait for new when you can have it all now? You'll appreciate the convenient finishes of the INCLUDED REFRIGERATOR, WINDOW COVERINGS, & a FINISHED BACKYARD, STEEL GATES, & an EV CHARGER in the garage. Light & bright, with ACCENT COLORS & BUILT-INS in all the right places. Open Floor plan with downstairs half bath & an UPGRADED KITCHEN featuring a gas range, large island & OVERSIZED PANTRY. Enjoy LARGE under stairs storage off the entry hall. Separate living spaces keep the common areas away from the bedrooms for maximum PRIVACY. Large LAUNDRY ROOM UPSTAIRS, conveniently located with all FOUR bedrooms. WALK-IN CLOSETS in every bedroom for ABUNDANT STORAGE. Perks include OPEN SPACE BEHIND, mountain views, CHEAP DIXIE POWER, & RENTABLE. Enjoy an UPGRADED BACKYARD that is FULLY FENCED WITH GATES & has easy-care TURF & an EXTENDED PATIO. BUT THAT'S NOT ALL!! The Long Valley community AMENITIES includes 2 pools, Hot Tub, Splash Pad, 12 Pickleball Courts, 18 Hole Putting Course, Driving Nets, Basketball Court, Cornhole, Clubhouse Banquet Rooms, Green Space/Picnic areas, Walking Trails, Dog Park, & On-Site RV Storage. As well as a green/play place just steps from the home! All of this for the LOW HOA of just $50/month! With EASY ACCESS TO HWY 7 that will get you where you need to go quickly, plus NEARBY WALKABLE ACCESS TO AMENITIES, come enjoy Long Valley, where THIS ISN'T JUST A HOME, IT'S A LIFESTYLE!
Related Properties
© 2026 Washington County Board of Realtors MLS. IDX information is provided exclusively for consumers' personal, non-commercial use and may not be used for any purpose other than to identify prospective properties consumers may be interested in purchasing. Information is deemed reliable but is not guaranteed accurate by the MLS or Hamilton Homes | EXP Realty. Data last updated: 2026-01-17T23:46:48.73.
